糖系风适合的主材
自然舒适,温情治愈

如同糖系男神,颜值高,笑容带着治愈性一样;糖系空间,温情舒适,柔中带甜,像一块古方糖,随时能给疲累的生活带来甜味。因此,空间色彩最大的特点就是色调柔和呼应,主材上用灰白做空间的主调色,搭配原木砖,给人自然舒适的感觉;在软装上,选择温润的藤编或木头为主,再点缀莫兰迪色,更显家的温暖与治愈。
糖系的空间,阳光明朗,其热情可透过颜色和材质迅速簇拥到你的面前。尤其是经历了一天工作的疲惫之后,回到家,糖系的风格仿佛是一个准备温暖的,充满柔情的拥抱。
通透舒适的客厅
从色彩上讲,地砖的白色和墙砖的白色,及天花板的白色相互呼应,形成一个通透洁净的空间。沙发的灰色和挂画里的灰色,以及窗帘的灰色形成了呼应,让空间有了高级感,而抱枕一系列的莫兰迪色,又给空间增加甜甜的生活气息,整个家变得格外有韵味。
从质感上讲,地砖的亮光面与背景墙的镜面、电视柜精致摆件的光泽相互呼应,让空间有了亮奢感;而茶几的亚光面与电视柜的亚光面,与窗帘的亚麻面的柔和光泽,营造一个光感舒适的居住空间。

沙发背景墙用了 SRC681LK0242水墨白,采用泼、流、化融合顶级鱼肚白石材,将缥缈白云、蜿蜒峻岭、曲下涧水,在似与不似之间,将自然飘逸、空灵刻画出来。采用100°干粒镜面的水墨白800×2600mm四面连纹设计,晶莹剔透,仙气满满。
从规格上讲,客厅电视背景墙用800×2600mm规格的水墨白,一砖到顶,大气磅礴,提升家的档次;地砖用800×800mm方正规格的云冰山,突显空间方正格局。
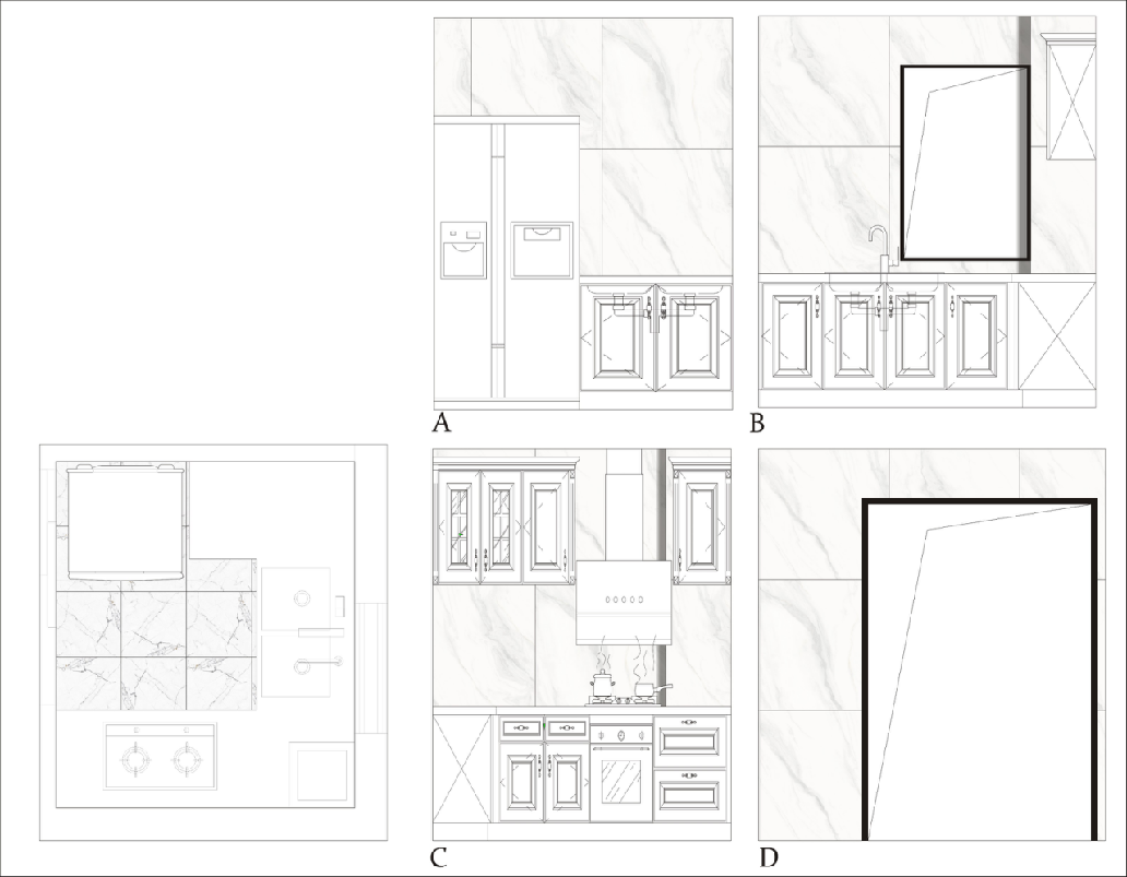
明亮易洁的厨房
从色彩上讲,厨房墙砖的白色和地砖的白色,以及顶柜的白色相呼应,形成一个让人眼前一亮的洁白厨房;原木色的地柜,给这个厨房增添了一抹烟火气息,让食物变得更美味。从质感上讲,墙砖的亮光面和地砖的亮光面,以及锅具、水龙头的金属光泽相呼应,让人轻松抹除油烟,打造清爽的烹饪小天地。

厨房墙砖采用了800×800mm的SEB800EP0132云冰山,白色的玉质基底糅合着灰色的嘿嘿视频免费入口纹理,就像是我国名景云冰山,轻盈通透的纹路把绵延不绝山脉的走向描画出来。配合亮光面设计,光亮易洁,适合营造一个明净光亮的空间。
从规格上讲,国内厨房顶柜与地柜的距离一般是60cm-70cm,墙砖用800×800mm规格的云冰山,无横缝,减少藏污纳垢;地砖用400×400mm规格的德纳里白,小巧灵活,铺贴易。
从色彩上讲,地砖的白木色和衣柜的原木色,以及护墙板、床头柜的原木色相呼应,让卧室变得自然而温馨;从质感上讲,地砖的炻质雅面和床单、被子抱枕的棉麻面相呼应,使得空间充满轻松与惬意的舒适气息。

从规格上讲,地砖400×1200mm规格切割成200×1200mm规格,铺贴方法多样,空间延伸感更好,时尚感更强。
时尚高级的主卫
从色彩上讲,主卫墙地砖和洗手台的不同饱和度灰,形成一个高级时尚的私密空间;而天花板的白色和马桶的白色,以及洗手盆的白色,让这个空间有了透气感,平衡整个空间的色彩。

主卫干区墙砖用了600×1200mm时尚规格的SDB26GP0482莱尔塔灰,灰调的砖面上,游走着金色和灰色的嘿嘿视频免费入口纹,营造出凹凸感的视觉效果,像是走进了一片神秘的混沌之地;亮光设计面,表面光滑,整洁干净易打理。

清爽防滑的客卫
从色彩上讲,天花板的白色和墙砖的粉白色,以及马桶、洗手盆的白色相呼应,空间显得清爽又明亮,而淋浴墙不同层次的咖色点缀其中,明显区分出空间的功能还增加了动感。
从质感上讲,两款墙砖的亮光面和镜子的亮面相呼应,让空间有了亮奢的雅致感,而地砖的雅光面,防滑防潮性能好,提高家人安全,适合有老人小孩的家庭。

客卫墙砖用SAH-112250-6克里斯,白色的瓷砖上同色系不同色相的白色色块交替出现,让空间有了层次感;配合300×600mm规格,小巧灵活,上墙铺贴方法多。

客卫地面沿用主卫地砖SF660BH1JA009-G4维纳斯灰,仿水泥肌底的灰色砖面上,细碎的竖纹和斑斑点点的水渍纹,像是一块经过岁月洗礼长满了青苔的石板;雅光面设计,防滑防潮性能好,适用在厨卫、阳台等空间,可以提升居住者的安全。
从规格上讲,客卫墙砖用300×600mm规格,小巧灵活,上墙铺贴方法多;地砖用600×600mm方正规格,突显空间方正格局,还易找坡度好排水。
自然温馨的阳台
从色彩上讲,阳台地砖的木色和椅子扶手的木色,以及顶柜的木色相呼应,形成一个自然舒适的休闲空间;而天花板的白色和洗手盆的白色,以及圆桌的白色,提升空间亮度,让空间显得嘿嘿连载APP下载官网下载别致,多了几分文艺感。
从色彩上讲,阳台地砖的木色和椅子扶手的木色,以及顶柜的木色相呼应,形成一个自然舒适的休闲空间;而天花板的白色和洗手盆的白色,以及圆桌的白色,提升空间亮度,让空间显得嘿嘿连载APP下载官网下载别致,多了几分文艺感。
这是一套来自四川成都的75m²的三居室,业主王先生今年28岁,跟妻子的职业都是人民教师。二人相知相恋,从校服到婚纱,经历了七年时间的考验,而这套小小的三居室也是他们的婚房。作为装修小白,王先生夫妻俩为了他们二人未来的家,在各大网站找了不少装修笔记,也咨询身边朋友的装修经验。从而得知,装修硬装品质很重要,尤其是瓷砖。在选择瓷砖品牌方面,夫妻二人慎之又慎,亲自跑了几趟材料市场,才敲定了用嘿嘿视频在线瓷砖。
在设计师理念中,空间是根据梁、承重墙、光线、空气与家人的生活习惯重新建构的。这就好比人的骨架要好看,人看上去才有气质与颜值。王先生这套三居室,是个动静分离颜值又高的婚房,从入户起,餐厅、客厅、阳台依次呈直线分布在一边,整体视野开阔,光线充足亮堂,属于动区;卧室在另外一边属于静区,动静相宜。
而瓷砖好比人的皮肤,规格、颜色、纹路、质感、亮度与整体空间档次和调性必须匹配,而且还要和谐统一,这种空间呆在里面才会舒服。王先生这套糖系的家,主材选择大部上纹理灵动、灰白调的瓷砖,但是新婚的家需要有温度,所以在卧室空间也选用了一些木纹的瓷砖,但整体色系还是保持了与整个家调性一致。